• Surface 207.47m²
  • Parking extérieur 4
  • Bureau 1
  • WC 1

réf.LU_HASSELT_001_VC_03Commerce en vente à Wemperhardt

Description

Nouvelle résidence à Wemperhardt

Nous avons l’honneur de vous présenter notre nouveau projet immobilier « An Hasselt » situé à Wemperhardt dans la commune de Weiswampach.

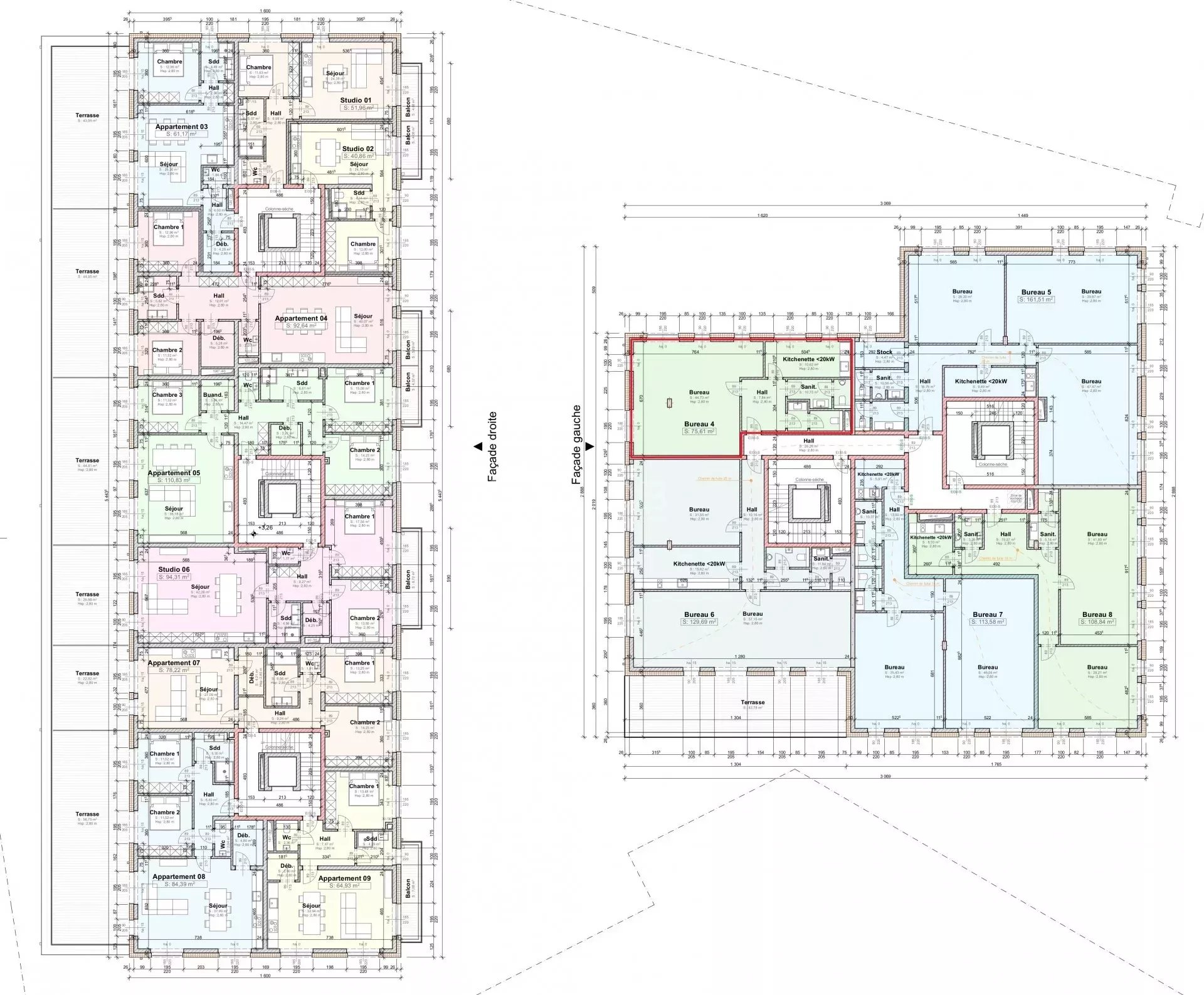
L’immeuble avec une conception architecturale de grande qualité offrira 42 unités (18 appartements, 7 Penthouses, 4 commerces et 13 bureaux) réparties en 2 immeubles.

Le commerce 03 de 207,47 m² en gros œuvre fermé se compose comme suit:
surface commerciale 155,24 m² – bureau 17,60 m² – réserve 24,69 m² – cuisine 5,36 m² – sanitaire 3,24 m²

Une cave de 24,74 m² complètent le projet. Les places de parking extérieures sont comprises dans le prix. Si vous le souhaitez, vous pouvez acheter des places de parking intérieures au prix de 25.000 € par place.

Le prix annoncé ci-dessous est considéré HTVA.

Ce magnifique projet sera construit à proximité de toutes les infrastructures nécessaires pour la vie quotidienne (écoles, crèches, cabinet médicaux, commerces, …).

Pour tout complément d’information et/ou des visites, contactez-nous au tél: +352 26 95 71 11.

Surfaces

Commerce 155.24 m²
Bureau 17.06 m²
Stock / Réserve 24.69 m²
Cuisine 5.36 m²
Toilettes 3.24 m²
Cave 24.74 m²
Parking extérieur 4

Prestations

  • Ascenseur
  • Interphone
  • Volets roulants électriques
  • Vidéophone
  • Triple vitrage
  • Ventilation double flux

À proximité

Médecin 3.7 kilomètre
Gare 6.4 kilomètre
Bus 400 mètre
École primaire 2.9 kilomètre
Cinéma 6.4 kilomètre
Commerces 1 kilomètre
Piscine publique 5.8 kilomètre
Lac 6.1 kilomètre
École secondaire 13.4 kilomètre
Salle de sport 190 mètre
Supermarché 170 mètre
Crèche 210 mètre

Adresse

8, Op der Haart,
9999 Wemperhardt
C

DPE (Diagnostique de Performance Energétique)

B

Classe d'isolation thermique

Kontaktieren Sie Ihren Berater

Contacter votre agent

Marlo KOHNEN

m.kohnen@hob.lu +352621662199